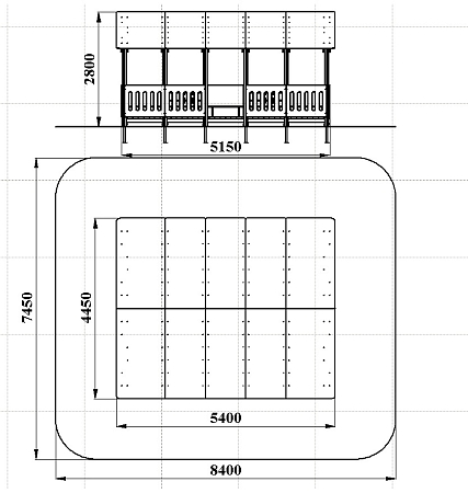
Технические параметры
Длина:
5420 мм
Ширина:
4460 мм
Высота:
2840 мм
Возраст:
от 3 до 18 лет
Высота падения:
250 мм
Площадь зоны безопасности:
62 м2
МФ 5.192-ДЕРЕВО Веранда деревянная 5х4 (Палитра 1 (-15))
Беседка состоит из площадки с крышей, скамеек по периметру и в центре, двух комплектов детских счет, ограждений фанерных сплошных и с вырезами.






