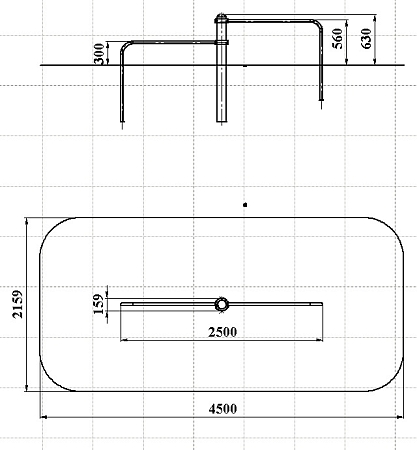
Технические параметры
Длина:
2500 мм
Ширина:
159 мм
Высота:
630 мм
Возраст:
от 14 до 18 лет
Высота падения:
530 мм
Площадь зоны безопасности:
10 м2
СО 7.30 Стойка с перекладинами (Палитра 4 (с22/22,34))
Воркаут состоит из несущего столба и двух металлических брусьев с зажимными хомутами.
Комплектация изделия
| Наименование комплектующих | шт. | Входящие материалы |
|---|---|---|
| Столб | 1шт. | Выполнен из металла окрашенного порошковой краской. |
| Брусья | 2шт. | Выполнены из металла окрашенного порошковой краской. |
| Зажимной элемент | 4шт. | Выполнен из аллюминия окрашенного порошковой краской. |



