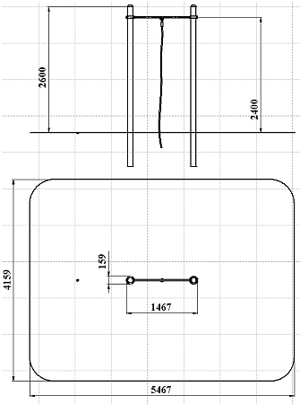
Технические параметры
Длина:
1467 мм
Ширина:
159 мм
Высота:
2600 мм
Возраст:
от 14 до 18 лет
Высота падения:
2400 мм
Площадь зоны безопасности:
23 м2
СО 7.251 Турник с канатом (Палитра 4 (с22/22,34))
Воркаут состоит из двух несущих столбов и перекладины с канатом с зажимными хомутами.
Комплектация изделия
| Наименование комплектующих | шт. | Входящие материалы |
|---|---|---|
| Столб | 2шт. | Выполнен из металла окрашенного порошковой краской, |
| Перекладина с канатом | 1шт. | Выполнена из металла окрашенного порошковой краской и полипропиленового каната. |
| Зажимной элемент | 4шт. | Выполнен из аллюминия окрашенного порошковой краской. |



