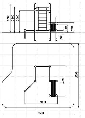
Технические параметры
Длина:
3000 мм
Ширина:
2790 мм
Высота:
2600 мм
Возраст:
от 14 до 18 лет
Высота падения:
2300 мм
Площадь зоны безопасности:
37 м2
СО 7.21 Базис NEW (Палитра 4 (с22/22,34))
Воркаут состоит из восьми несущих столбов, семи перекладин, шведской стенки и наклонной скамьи из бруса с зажимными хомутами.
Комплектация изделия
| Наименование комплектующих | шт. | Входящие материалы |
|---|---|---|
| Столб | 8шт. | Выполнен из металла окрашенного порошковой краской, |
| Перекладина | 5шт. | Выполнена из металла окрашенного порошковой краской. |
| Скамья для пресса | 1шт. | Выполнена из металла окрашенного порошковой краской и деревянного бруса сечением не менее 100х100 мм. |
| Шведская стенка | 1шт. | Выполнена из металла окрашенного порошковой краской. |
| Зажимной элемент | 36шт. | Выполнен из аллюминия окрашенного порошковой краской. |



