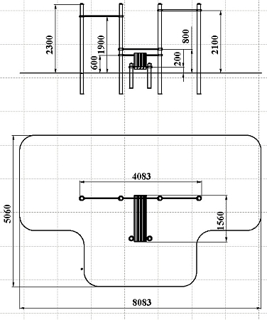
Технические параметры
Длина:
4083 мм
Ширина:
1560 мм
Высота:
2300 мм
Возраст:
от 14 до 18 лет
Высота падения:
2100 мм
Площадь зоны безопасности:
35 м2
СО 7.19 Лавочка для пресса и перекладины (Палитра 4 (с22/22,34))
Воркаут состоит из шести несущих столбов, пяти перекладин и наклонной скамьи из бруса с зажимными хомутами.
Комплектация изделия
| Наименование комплектующих | шт. | Входящие материалы |
|---|---|---|
| Столб | 6шт. | Выполнен из металла окрашенного порошковой краской, |
| Перекладина | 3шт. | Выполнена из металла окрашенного порошковой краской, |
| Скамья для пресса | 1шт. | Выполнена из металла окрашенного порошковой краской и деревянного бруса сечением не менее 100х100 мм. |
| Зажимной элемент | 20шт. | Выполнен из аллюминия окрашенного порошковой краской. |



