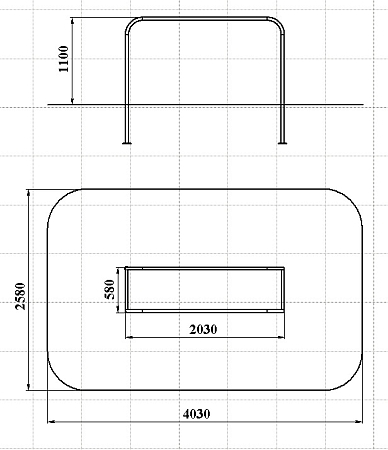
Технические параметры
Длина:
2030 мм
Ширина:
580 мм
Высота:
1100 мм
Возраст:
от 14 до 18 лет
Высота падения:
1100 мм
Площадь зоны безопасности:
12 м2
СО 7.08 Брусья (Палитра 3, Палитра 4)
Брусья выполнены из цельносварного металлокаркаса в виде двух параллельных брусьев.
Комплектация изделия
| Наименование комплектующих | шт. | Входящие материалы |
|---|---|---|
| Брусья | 1шт. | Выполнены из металла окрашенного порошковой краской, |



