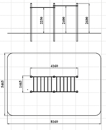
Технические параметры
Длина:
4160 мм
Ширина:
1465 мм
Высота:
2600 мм
Возраст:
от 14 до 18 лет
Высота падения:
2400 мм
Площадь зоны безопасности:
45 м2
СО 7.02 Рукоход классический двухуровневый (Палитра 4 (с22/22,34))
Воркаут состоит из шести несущих столбов и двух рукоходов с зажимными хомутами.
Комплектация изделия
| Наименование комплектующих | шт. | Входящие материалы |
|---|---|---|
| Столб | 6шт. | Выполнен из металла окрашенного порошковой краской, |
| Рукоход | 2шт. | Выполнен из металла окрашенного порошковой краской. |
| Зажимной элемент | 16шт.. | Выполнен из аллюминия окрашенного порошковой краской. |



