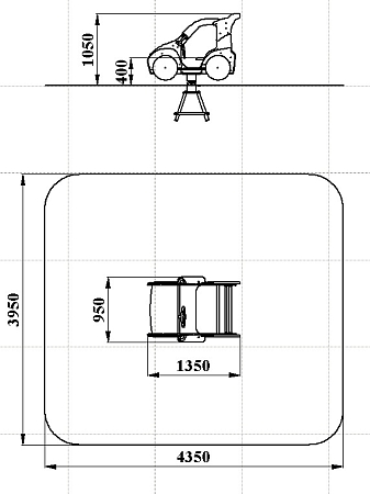
Технические параметры
Длина:
1350 мм
Ширина:
950 мм
Высота:
1050 мм
Возраст:
от 3 до 6 лет
Высота падения:
400 мм
Площадь зоны безопасности:
17 м2
ДИО 4.50 Качалка на пружине (Палитра 12 (Художка))
Качалка на пружине в форме машины изготовлена из фанерных элементов с ручной художественной росписью, вращающегося руля и металлических элементов с пружиной.


