Технические параметры
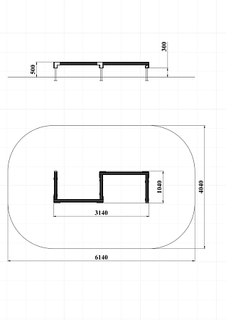
Длина:
3140 мм
Ширина:
1040 мм
Высота:
500 мм
Возраст:
от 3 до 13 лет
Высота падения:
500 мм
Площадь зоны безопасности:
24 м2
СО 5.125 Бум-бревно змейка среднее (Палитра 5 (-11,32))
Комплектация изделия
| Наименование комплектующих | шт. | Входящие материалы |
|---|---|---|
| Накладка угловая 200х200 | 8шт. | Выполнен из фанеры марки ФСФ толщиной 21 мм. |
| Столб | 5шт. | Выполнен из клееного деревянного бруса, сечением 100х100 мм. |
Файлы для загрузки
- СО 5.125-8,22,35 с зоной безопасности.rar
- СО 5.125-11,32 с зоной безопасности.rar
- СО 5.125-15 с зоной безопасности.rar
- СО 5.125-16 с зоной безопасности.rar
- СО 5,125-26,8,32с зоной безопасности.rar
- СО 5.125-с22,19,20 с зоной безопасности.rar
- СО 5.125-с22,20,34 с зоной безопасности.rar
- СО 5.125-с26,8,21 с зоной безопасности.rar
- СО 5.125-с26,11,13 с зоной безопасности.rar



