Технические параметры
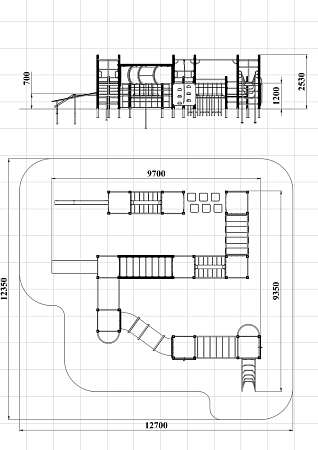
Спортивный комплекс состоит из девяти башен. На первой башне установлены ручки вспомогательные, перекладины, бум бревно. На второй башне уста-новлены ручки вспомогательные, перекладины. На третьей башне установлены ручки вспомогательные, перекладины. На четвертой башне установлены перекладины. На пятой башне установлены ручки вспомогательные, перекладины. На шестой башне установлены ручки вспомогательные, перекладины и скамья гимнастическая. На седьмой башне установлены ручки вспомогательные, перекладины, шест, шведские стенки. На восьмой башне установлены ручки вспомогательные, перекладины, альпинистская стенка, перекладина с канатом, шведские стенки. На девятой башне установлены ручки вспомогательные, перекладины, альпинистская стенка, перекладина с канатом, шведские стенки и лиана. Первая и вторая башни соединены подвесным качающимся бревном со страховочным мостом, вторая и третья комплексом из табурет-шагоходов, третья и четвертая подвесным качающимся мостом, четвертая и пятая подвесным качающимся бревном со страховочным мостом, пятая и шестая вертикальной металлической сеткой и рукоходом, шестая и седьмая перекладинами, седьмая и восьмая пластиковым изогнутым переходом, восьмая и девятая рукоходом.
Комплектация изделия
| Наименование комплектующих | шт. | Входящие материалы |
|---|---|---|
| Наклонная скамья | 1шт. | Выполнена из ламинированной противоскользящей фанеры толщиной 18 мм и из металла окрашенного порошковой краской. |
| Альпинистская стенка | 2шт. | Выполнена из фанеры марки ФСФ толщиной 18 мм. |
| Перекладина с канатом | 2шт. | Выполнена из металла окрашенного порошковой краской и полипропиленового каната. |
| Рукоход | 1шт. | Выполнен из металла окрашенного порошковой краской. |
| Ручка вспомогательная | 22шт. | Выполнена из металла, покрытого слоем резины. |
| Перекладина | 73шт. | Выполнена из металла окрашенного порошковой краской. |
| Сетка металлическая | 1шт. | Выполнена из металла окрашенного порошковой краской. |
| Лиана | 1шт. | Выполнена из металла окрашенного порошковой краской. |
| Мост подвесной с страховочным мостом | 1шт. | Выполнен из металла окрашенного порошковой краской, ламинированной противоскользящей влагостойкой фанеры толщиной 18 мм и полипропиленового каната. |
| Бум-бревно подвесное с страховочным мостом. | 2шт. | Выполнен из металла окрашенного порошковой краской, ламинированной противоскользящей влагостойкой фанеры толщиной 18 мм, полипропиленового каната и деревянного бруса сечением 180х70 мм. |
| Шест | 2шт. | Выполнен из металла окрашенного порошковой краской. |
| Табурет-шагоход | 6шт. | Выполнено из металла окрашенного порошковой краской и ламинированной противоскользящей влагостойкой фанеры толщиной 18 мм. |
| Бум бревно | 1шт. | Выполнено из деревянного клееного бруса, сечением 180х70 мм. |
| Труба переход пластиковая | 1шт. | Состоит из сегментов, изготовленных из полиэтилена низкого давления, со стенками толщиной 8 мм. |
| Площадка | 9шт. | Выполнена из ламинированной противоскользящей влагостойкой фанеры толщиной 18 мм. |
| Столб | 38шт. | Выполнен из клееного деревянного бруса, сечением 100х100 мм. |






