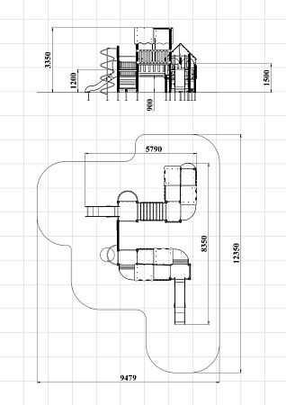
Технические параметры
Длина:
8350 мм
Ширина:
5790 мм
Высота:
3350 мм
Возраст:
от 3 до 13 лет
Высота падения:
1500 мм
Площадь зоны безопасности:
108 м2
ДИК 9.163-ДПК Детский игровой комплекс Н=900 мм,1200 мм (Палитра 5 (-11,32))
Детский игровой комплекс состоит из шести разновысоких башен. На первой башне установлена лестница, горка, фанерное ограждение и ручки вспомогательные. На второй сдвоенной башне, установлены фанерные ограждения и крыша. На третьей башне установлены фанерное ограждение, шест спираль, лестница и ручки вспомогательные. На четвертой башне установлены горка и балкон. На пятой башне установлено фанерное ограждение, лестница, вспомогательные ручки. На шестой сдвоенной установлены фанерные ограждения и крыша. Третья и четвертая башни соединены сеткой полипропиленовой, четвертая и пятая прямым мостом с фанерными перилами.
Комплектация изделия
| Наименование комплектующих | шт. | Входящие материалы |
|---|---|---|
| Горка | 2шт. | Высота 900 мм и 1200 мм. Выполнена из фанеры марки ФСФ толщиной 21 мм, металлического каркаса и ската из нержавеющей стали. |
| Лестница | 2шт. | Выполнена из металла окрашенного порошковой краской и фанеры марки ФСФ толщиной 21 мм |
| Крыша | 2шт. | Выполнена из металла окрашенного порошковой краской, фанеры марки ФСФ толщиной 21 мм и 12 мм. |
| Ограждение из балясин. | 4шт. | Выполнено из фанеры марки ФСФ толщиной 21 мм. |
| Ограждение 850х600 мм | 6шт. | Выполнена из фанеры марки ФСФ толщиной 18 мм. |
| Перекладина | 13шт. | Выполнена из металла окрашенного порошковой краской. |
| Ручка вспомогательная | 8шт. | Выполнена из металла, покрытого слоем резины. |
| Балкон | 1шт. | Выполнен из металла окрашенного порошковой краской и ламинированной противоскользящей влагостойкой фанеры толщиной 18 мм. |
| Шест-спираль | 1шт. | Выполнена из металла окрашенного порошковой краской. |
| Сидение 250х700 мм | 4шт. | Выполнена из фанеры марки ФСФ толщиной 21 мм. |
| Сетка | 1шт. | Выполнена из полипропиленового армированного каната. |
| Мост прямой | 1шт. | Выполнен из металла окрашенного порошковой краской и деревянного бруса сечением 40х135 мм. |
| Ограждение моста | 2шт. | Выполнено из фанеры марки ФСФ толщиной 21 мм. |
| Площадка | 12шт. | Выполнена из ламинированной противоскользящей влагостойкой фанеры толщиной 18 мм. |
| Столб | 27шт. | Выполнен из древесно-полимерного композита (ДПК) сечением 100х100 мм. |






