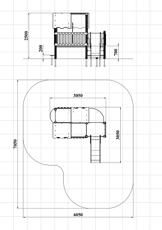
Технические параметры
Длина:
3050 мм
Ширина:
3050 мм
Высота:
2500 мм
Возраст:
от 3 до 6 лет
Высота падения:
700 мм
Площадь зоны безопасности:
40 м2
ДИК 9.08-ДЕРЕВО Детский игровой комплекс Н=700 мм (Палитра 1 (-15))
Детский игровой комплекс состоит из двух башен. На первой башне установлена перекладина, горка, фанерное ограждение и ручки вспомогательные. На второй сдвоенной башне, установлены фанерные ограждения, перекладина и крыша.
Комплектация изделия
| Наименование комплектующих | шт. | Входящие материалы |
|---|---|---|
| Горка | 1шт. | Высота 700 мм. Выполнена из фанеры марки ФСФ толщиной 21 мм, металлического каркаса и ската из нержавеющей стали. |
| Крыша | 1шт. | Выполнена из металла окрашенного порошковой краской, фанеры марки ФСФ толщиной 21 мм и 12 мм. |
| Ограждение из балясин. | 2шт. | Выполнено из фанеры марки ФСФ толщиной 21 мм. |
| Ограждение 850х600 мм | 3шт. | Выполнена из фанеры марки ФСФ толщиной 18 мм. |
| Перекладина | 2шт. | Выполнена из металла окрашенного порошковой краской. |
| Ручка вспомогательная | 4шт. | Выполнена из металла, покрытого слоем резины. |
| Сидение 250х700 мм | 2шт. | Выполнена из фанеры марки ФСФ толщиной 21 мм. |
| Площадка | 4шт. | Выполнена из ламинированной противоскользящей влагостойкой фанеры толщиной 18 мм. |
| Столб | 9шт. | Выполнен из клееного деревянного бруса, сечением 100х100 мм. |






