Технические параметры
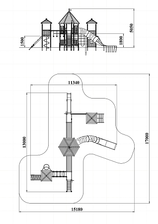
Детский игровой комплекс состоит из пяти башен. На первой башне установлены крыша четырёхскатная, пять ограждений из бруса, ручка, перекладина и трап из сетки полипропиленовой на металлическом каркасе. На второй башне установлены два ограждения из бруса, флажки декоративные, перекладина и горка. На третьей шестигранной двухъярусной башне установлены двенадцать ограждений из бруса, горка труба нержавеющая и крыша шестискатная. На четвёртой башне установлены два ограждения из бруса, лестница и флажки декоративные. На пятой башне установлены крыша четырёхскатная, пять ограждений из бруса, ручка, перекладина и трап из бруса с альпинистскими камнями.
Первая и вторая башни соединены сеткой полипропиленовой. Вторая и третья башни, третья и четвертая башни соединены мостом разновысоким из бруса. Четвёртая и пятая башни соединены мостом подвесным из деревянного бруса и полипропиленового каната.
Комплектация изделия
| Наименование комплектующих | шт. | Входящие материалы |
|---|---|---|
| Горка | 1шт. | Высота 1500 мм. Выполнена из фанеры марки ФСФ толщиной 21 мм, металлического каркаса и ската из нержавеющей стали.. |
| Горка нержавеющая | 1шт. | Высота 1800 мм. Выполнена из нержавеющей стали.. |
| Крыша1 | 2шт. | Выполнена из деревянного бруса сечением 40х90 мм и 50х100 мм, фанеры марки ФСФ толщиной 15 мм и клееного деревянного бруса сечением 100х100 мм. |
| Крыша2 | 1шт. | Выполнена из металла окрашенного порошковой краской, деревянного бруса сечением 40х90 мм и 50х100 мм, фанеры марки ФСФ толщиной 15 мм и клееного деревянного бруса сечением 100х100 мм. |
| Лестница | 1шт. | Высотой 1500 мм, Выполнена из фанеры ламинированной противоскользящаей, толщиной 18 мм, бруса сечением 40х90 мм. |
| Ограждение из бруса | 30шт. | Выполнено из бруса сечением 40х90 мм и 30х120 мм. |
| Трап | 1шт. | Выполнен из бруса сечением 40х140 мм и металла окрашенного порошковой краской. |
| Трап с сеткой | 1шт. | Выполнен из полипропиленового каната и металла окрашенного порошковой краской. |
| Перекладина | 3шт. | Выполнена из металла окрашенного порошковой краской. |
| Ручка приставная Г-образная | 2шт. | Выполнена из металла окрашенного порошковой краской. |
| Шест-спираль | 1шт. | Выполнен из металла окрашенного порошковой краской. |
| Сетка | 1шт. | Выполнена из полипропиленового каната. |
| Мост наклонный из бруса | 2шт. | Выполнен из фанеры ламинированной противоскользящей толщиной 18 мм, деревянного бруса сечением 40х140 мм и металла окрашенного порошковой краской. |
| Мост подвесной из бруса со страховочным мостом | 1шт. | Выполнена из фанеры ламинированной противоскользящей толщиной 18 мм, полипропиленового каната, деревянного бруса сечением 100х100 мм, 40х140 мм и 40х90 мм. |
| Площадка | 8шт. | Выполнена из ламинированной противоскользящей влагостойкой фанеры толщиной 18 мм. |
| Столб | 35шт. | Выполнен из клееного деревянного бруса, сечением 100х100 мм. |






