Технические параметры
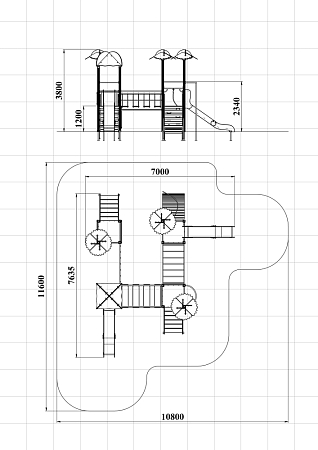
Детский игровой комплекс состоит из четырех башен с крышами. На первой башне установлена лестница, ограждение фанерное, ручки вспомогательные, перекладины и альпинистская стенка. На второй башне установлены горка, ограждение фанерное и перекладины. На третьей башне установлены лестница, шест, альпинистская стенка, перекладины и ручки вспомогательные. На четвертой башне установлена горка, альпинистская стенка, трап барабан с перекладиной и канатом, перекладины и ручки вспомогательные. Первая и вторая башни соединены металлической вертикальной сеткой, вторая и третья башни соединены подвесным качающимся мостом, третья и четвертая башни соединены рукоходом. Все резьбовые соединения должны быть закрыты пластиковыми заглушками.Детский игровой комплекс состоит из четырех башен с крышами. На первой башне установлена лестница, ограждение фанерное, ручки вспомогательные, перекладины и альпинистская стенка. На второй башне установлены горка, ограждение фанерное и перекладины. На третьей башне установлены лестница, шест, альпинистская стенка, перекладины и ручки вспомогательные. На четвертой башне установлена горка, альпинистская стенка, трап барабан с перекладиной и канатом, перекладины и ручки вспомогательные. Первая и вторая башни соединены металлической вертикальной сеткой, вторая и третья башни соединены подвесным качающимся мостом, третья и четвертая башни соединены рукоходом.
Комплектация изделия
| Наименование комплектующих | шт. | Входящие материалы |
|---|---|---|
| Горка | 2шт. | Высота 1200 мм. Выполнена из фанеры марки ФСФ толщиной 21 мм, металлического каркаса и ската из нержавеющей стали. |
| Крыша1 | 3шт. | Выполнена из фанеры марки ФСФ толщиной 21 мм. |
| Крыша2 | 1шт. | Выполнена из фанеры марки ФСФ толщиной 21 мм и 12 мм. |
| Лестница | 2шт. | Высотой 1200 мм, Выполнена из фанеры ламинированной противоскользящаей, толщиной 18 мм, бруса сечением 40х90 мм. |
| Шест | 1шт. | Выполнена из металла окрашенного порошковой краской. |
| Рукоход | 1шт. | Выполнена из металла окрашенного порошковой краской. |
| Трап-барабан в сборе с перекладиной и канатом | 1шт. | Выполнен из бруса сечением 40х90 мм, металла окрашенного порошковой краской и полипропиленового каната. |
| Сетка металлическая | 1шт. | Выполнен из металла окрашенного порошковой краской. |
| Альпинистская стенка | 3шт. | Выполнена из фанеры марки ФСФ толщиной 18 мм. |
| Перекладина | 17шт. | Выполнена из металла окрашенного порошковой краской. |
| Ограждение 1100х600 мм | 2шт. | Выполнено из фанеры марки ФСФ толщиной 18 мм. |
| Ручка вспомогательная | 8шт. | Выполнена из металла, покрытого слоем резины. |
| Мост подвесной с страховочным мостом | 1шт. | Выполнен из металла окрашенного порошковой краской, ламинированной противоскользящей влагостойкой фанеры толщиной 18 мм и полипропиленового каната. |
| Площадка | 4шт. | Выполнена из ламинированной противоскользящей влагостойкой фанеры толщиной 18 мм. |
| Столб | 16шт. | Выполнен из древесно-полимерного композита (ДПК) сечением 100х100 мм. |






