Технические параметры
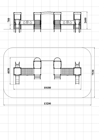
Детский игровой комплекс состоит из четырёх ба-шен с крышами. На первой башне установлена горка, перекладина, лиана и ограждение фанерное с декоративными накладками. На второй башне установлено ограждение фанерное с декоративными накладками, лестница, перекладины, балкон. На третьей башне установлено ограждение фанерное с декоративными накладками, лестница, перекладины, балкон. На четвертой башне установлена горка, перекладина, лиана и ограждение фанерное с декоративными накладками. Первая башня соединена со второй прямым мостом с фанерными перилами, третья соединяется с четвертой прямым мостом с фанерными перилами. Между второй и третьей башней установлена декоративная зубчатая фанерная арка, на уровне фасадов крыш.
Комплектация изделия
| Наименование комплектующих | шт. | Входящие материалы |
|---|---|---|
| Горка | 2шт. | Высота 700 мм. Выполнена из фанеры марки ФСФ толщиной 21 мм, металлического каркаса и ската из нержавеющей стали. |
| Крыша | 4шт. | Выполнена из фанеры марки ФСФ толщиной 12 мм. |
| Лестница | 2шт. | Высотой 700 мм, Выполнена из фанеры ламинированной противоскользящаей, толщиной 18 мм, бруса сечением 40х90 мм. |
| Ограждение | 4шт. | Выполнена из фанеры марки ФСФ толщиной 18 мм. |
| Ограждение из бруса и металлических перекладин | 2шт. | Выполнено из оцинкованного металла и деревянно-го бруса сечением 40х90 мм. |
| Мост прямой | 2шт. | Выполнен из металла окрашенного порошковой краской и деревянного бруса сечением 40х135 мм. |
| Ограждение моста | 4шт. | Выполнена из фанеры марки ФСФ толщиной 21 мм. |
| Балкон | 2шт. | Выполнен из металла окрашенного порошковой краской и ламинированной противоскользящей вла-гостойкой фанеры толщиной 18 мм. |
| Перекладина | 10шт. | Выполнена из металла окрашенного порошковой краской. |
| Лиана | 2шт. | Выполнена из металла окрашенного порошковой краской. |
| Площадка | 4шт. | Выполнена из ламинированной противоскользящей влагостойкой фанеры толщиной 18 мм. |
| Столб | 20шт. | Выполнен из клееного деревянного бруса, сечением 100х100 мм. |






