Технические параметры
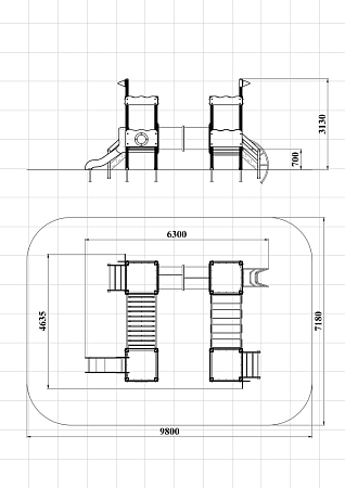
Детский игровой комплекс состоит из четырёх башен с крышами. На первой башне установлена ограждение фанерное с художественным оформлением, лестница, перекладины и декоративные флажки. На второй башне установлено ограждение фанерное с художественным оформлением, лиана наклонная и перекладины. На третьей башне установлено ограждение фанерное с художественным оформлением, декоративные флажки и лестница. На четвертой башне установлено ограждение фанерное с художественным оформлением, перекладины и горка. Первая башня соединена подвесным качающимся мостом со второй. Вторая соединяется с третьей пластиковой трубой переходом. Третья соединяется с четвёртой мостом радиусным с металлическими перилами.
Комплектация изделия
| Наименование комплектующих | шт. | Входящие материалы |
|---|---|---|
| Горка | 1шт. | Высота 700 мм. Выполнена из фанеры марки ФСФ толщиной 21 мм, металлического каркаса и ската из нержавеющей стали. |
| Крыша | 4шт. | Выполнена из фанеры марки ФСФ толщиной 12 мм. |
| Лестница | 2шт. | Высотой 700 мм, Выполнена из фанеры ламинированной противоскользящаей, толщиной 18 мм, бруса сечением 40х90 мм. |
| Ограждение | 4шт. | Выполнена из фанеры марки ФСФ толщиной 18 мм. |
| Мост подвесной с страховочным мостом | 1шт. | Выполнен из металла окрашенного порошковой краской, ламинированной противоскользящей влагостойкой фанеры толщиной 18 мм и полипропиле-нового каната. . |
| Мост радиусный | 1шт. | Выполнен из металла окрашенного порошковой краской и деревянного бруса сечением 40х135 мм. |
| Ограждение металлическое моста | 4шт. | Выполнена из металла окрашенного порошковой краской. |
| Труба переход | 1шт. | Состоит из сегментов, изготовленных из полиэтилена низкого давления, со стенками толщиной 8 мм. |
| Перекладина | 10шт. | Выполнена из металла окрашенного порошковой краской. |
| Лиана | 1шт. | Выполнена из металла окрашенного порошковой краской. |
| Площадка | 4шт. | Выполнена из ламинированной противоскользящей влагостойкой фанеры толщиной 18 мм. |
| Столб | 16шт. | Выполнен из древесно-полимерного композита (ДПК) сечением 100х100 мм. |






