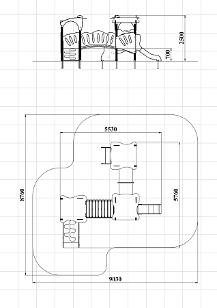
Технические параметры
Длина:
5760 мм
Ширина:
5530 мм
Высота:
2500 мм
Возраст:
от 3 до 6 лет
Высота падения:
700 мм
Площадь зоны безопасности:
86 м2
ДИК 3.25-ДЕРЕВО Детский игровой комплекс Н=700 мм (Палитра 1 (-15))
Детский игровой комплекс состоит из трёх башен с фасонными крышами. На первой башне установлена лестница и фасонные фанерные ограждения. На второй башне установлена горка и фасонное фанерное ограждение . На третьей башне установлены фигурный трап и фасонные фанерные ограждения. Первая и вторая башни соединены пластиковой трубой переходом, вторая и третья соединены радиусным мостом с фасонными фанерными перилами.
Комплектация изделия
| Наименование комплектующих | шт. | Входящие материалы |
|---|---|---|
| Горка | 1шт. | Высота 700 мм. Выполнена из фанеры марки ФСФ толщиной 21 мм, металлического каркаса и ската из нержавеющей стали. |
| Крыша | 3шт. | Выполнена из фанеры марки ФСФ толщиной 21 мм и 15 мм. |
| Лестница | 1шт. | Высотой 700 мм, Выполнена из фанеры ламинированной противоскользящаей толщиной 18 мм, фанеры марки ФСФ толщиной 21 мм, бруса сечением 40х90 мм. |
| Трап фигурный | 1шт. | Высотой 700 мм. Выполнен из ламинированной противоскользящей фанеры толщиной 18 и влагостойкой фанеры марки ФСФ толщиной 21 мм и 12 мм. |
| Ограждение | 5шт. | Выполнено из фанеры марки ФСФ толщиной 21 мм. |
| Мост радиусный | 1шт. | Выполнен из металла окрашенного порошковой краской и деревянного бруса сечением 40х135 мм. |
| Перила моста | 2шт. | Выполнено из фанеры марки ФСФ толщиной 21 мм. |
| Труба переход пластиковая | 1шт. | Состоит из сегментов, изготовленных из полиэтилена низкого давления, со стенками толщиной 8 мм.. |
| Площадка | 3шт. | Выполнена из ламинированной противоскользящей влагостойкой фанеры толщиной 18 мм. |
| Столб | 12шт. | Выполнен из клееного деревянного бруса, сечением 100х100 мм. |






