Технические параметры
Длина:
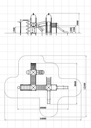
10000 мм
Ширина:
8060 мм
Высота:
3900 мм
Возраст:
от 7 до 13 лет
Высота падения:
2100 мм
Площадь зоны безопасности:
168 м2
ДИК 3.167-ДЕРЕВО Детский игровой комплекс Н=1200,1500 мм (Палитра 1 (-15))
Детский игровой комплекс состоит из трёх башен с металлическими крышами. На первой башне с полубашней установлены лестница, две горки, ограждения металлические и соединяется со второй башней разновысоким мостом с металлическими перилами. На второй башне установлены ограждение с круглым вырезом, альпинистская стенка, ручки вспомогательные, шведская стенка, внешний гимнастический комплекс с баскетбольным щитом и кольцом. Вторая башня соединяется с третьей радиусным мостом с фанерными перилами. На третьей башне установлена спираль наклонная, шест-спираль, ручки вспомогательные и трап барабан с перекладиной и канатом.
Комплектация изделия
| Наименование комплектующих | шт. | Входящие материалы |
|---|---|---|
| Горка | 2шт. | Высота 1200 мм и 1500 мм. Выполнена из фанеры марки ФСФ толщиной 21 мм, металлического каркаса и ската из нержавеющей стали. |
| Крыша | 3шт. | Выполнена из металла окрашенного порошковой краской и бруса сечением 100х100 мм.. |
| Лестница | 1шт. | Высотой 1500 мм, Выполнена из фанеры ламинированной противоскользящаей, толщиной 18 мм, бруса сечением 40х90 мм. |
| Мост радиусный | 1шт. | Выполнен из металла окрашенного порошковой краской и деревянного бруса сечением 40х135 мм. |
| Ограждение моста радиусного | 2шт. | Выполнена из фанеры марки ФСФ толщиной 21 мм. |
| Ограждение металлическое 900х700 мм | 2шт. | Выполнен из металла окрашенного порошковой краской. |
| Альпинистская стенка | 1шт. | Выполнена из фанеры марки ФСФ толщиной 18 мм |
| Ограждение моста наклонного. | 4шт. | Выполнен из металла окрашенного порошковой краской. |
| Щит баскетбольный с кольцом | 1шт. | Выполнен из металла окрашенного порошковой краской и фанеры марки ФСФ толщиной 18 мм. |
| Трап-барабан с перекладиной и канатом | 1шт. | Выполнен из бруса сечением 40х90 мм, металла окрашенного порошковой краской и полипропиленового каната. |
| Перекладина | 18шт. | Выполнена из металла окрашенного порошковой краской. |
| Спираль наклонная | 1шт. | Выполнена из металла окрашенного порошковой краской. |
| Ограждение с полукруглым вырезом 1100х450 мм | 4шт. | Выполнена из фанеры марки ФСФ толщиной 4 мм |
| Ручка | 8шт. | Выполнена из металла, покрытого слоем резины. |
| Шест-спираль | 1шт. | Выполнена из металла окрашенного порошковой краской. |
| Мост наклонный | 1шт. | Выполнен из металла окрашенного порошковой краской и деревянного бруса сечением 40х135 мм. |
| Площадка | 4шт. | Выполнена из ламинированной противоскользящей влагостойкой фанеры толщиной 18 мм. |
| Столб | 21шт. | Выполнен из клееного деревянного бруса, сечением 100х100 мм. |






