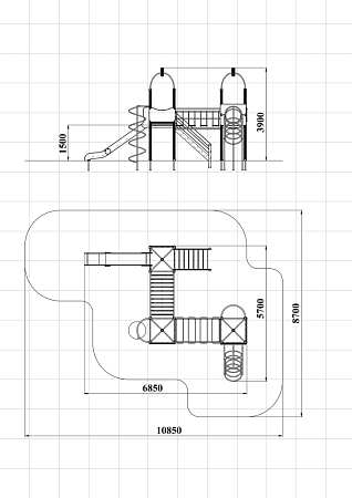
Технические параметры
Длина:
6850 мм
Ширина:
5700 мм
Высота:
3900 мм
Возраст:
от 7 до 13 лет
Высота падения:
1500 мм
Площадь зоны безопасности:
94 м2
ДИК 3.165-ДЕРЕВО Детский игровой комплекс Н=1500 мм (Палитра 1 (-15))
Детский игровой комплекс состоит из трёх башен с металлическими крышами. На первой башне установлена лестница, горка, фанерное ограждение и она соединяется со второй радиусным мостом с металлическими перилами. На второй башне установлено фанерное ограждение, шест спираль и она соединяется подвесным качающимся мостом с третьей башней. На третьей башне установлена спираль наклонная, шест и фанерное ограждение.
Комплектация изделия
| Наименование комплектующих | шт. | Входящие материалы |
|---|---|---|
| Горка | 1шт. | Высота 1500 мм. Выполнена из фанеры марки ФСФ толщиной 21 мм, металлического каркаса и ската из нержавеющей стали. |
| Крыша | 3шт. | Выполнена из металла окрашенного порошковой краской и бруса сечением 100х100 мм. |
| Лестница | 1шт. | Высотой 1500 мм, Выполнена из фанеры ламинированной противоскользящаей, толщиной 18 мм, бруса сечением 40х90 мм. |
| Шест | 1шт. | Выполнен из металла окрашенного порошковой краской. |
| Спираль наклонная | 1шт. | Выполнена из металла окрашенного порошковой краской. |
| Шест-спираль | 1шт. | Выполнен из металла окрашенного порошковой краской. |
| Ограждение с полукруглым вырезом 1100х450 мм. | 2шт. | Выполнено из фанеры марки ФСФ толщиной 21 мм. |
| Мост радиусный | 1шт. | Выполнен из металла окрашенного порошковой краской и деревянного бруса сечением 40х135 мм. |
| Перила моста | 4шт. | Выполнены из металла окрашенного порошковой краской. |
| Перекладина | 2шт. | Выполнена из металла окрашенного порошковой краской. |
| Мост подвесной с страховочным мостом | 1шт. | ВВыполнен из металла окрашенного порошковой краской, ламинированной противоскользящей вла-гостойкой фанеры толщиной 18 мм и полипропиле-нового каната. . |
| Ручка вспомогательная | 4шт. | Выполнена из металла, покрытого слоем резины. |
| Мост подвесной с страховочным мостом | 1шт. | Выполнен из металла окрашенного порошковой краской, ламинированной противоскользящей влагостойкой фанеры толщиной 18 мм и полипропиле-нового каната. |
| Ограждение | 3шт. | Выполнена из фанеры марки ФСФ толщиной 18 мм. |
| Площадка | 3шт. | Выполнена из ламинированной противоскользящей влагостойкой фанеры толщиной 18 мм. |
| Столб | 15шт. | Выполнен из клееного деревянного бруса, сечением 100х100 мм. |






