Технические параметры
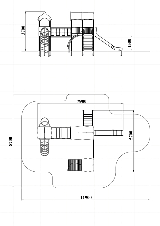
Длина:
7900 мм
Ширина:
5700 мм
Высота:
3750 мм
Возраст:
от 7 до 13 лет
Высота падения:
1500 мм
Площадь зоны безопасности:
103 м2
ДИК 3.113-ДПК Детский игровой комплекс Н=1500 мм (Палитра 5 (-11,32))
Детский игровой комплекс состоит из трех башен. На первой башне установлены альпинистская стенка с перекладиной и канатом, шест прямой, ограждение из бруса с перекладинами и шведская стенка. На второй башне установлена лестница, горка и два ограждения из бруса с перекладинами . Первая и вторая башня соединяются полипропиленовой сеткой. На третьей башне установлено ограждение из бруса с перекладинами, шест спираль и спираль наклонная. Вторая и третья башни соединены подвесным мостом.
Комплектация изделия
| Наименование комплектующих | шт. | Входящие материалы |
|---|---|---|
| Горка | 1шт. | Высота 1500 мм. Выполнена из фанеры марки ФСФ толщиной 21 мм, металлического каркаса и ската из нержавеющей стали. |
| Крыша | 3шт. | Выполнена из фанеры марки ФСФ толщиной 18 мм и 12 мм. |
| Лестница | 1шт. | Высотой 1500 мм, Выполнена из фанеры ламинированной противоскользящаей, толщиной 18 мм, бруса сечением 40х90 мм. |
| Шест-спираль | 1шт. | Выполнена из металла окрашенного порошковой краской. |
| Спираль наклонная | 1шт. | Выполнена из металла окрашенного порошковой краской. |
| Ограждение с полукруглым вырезом 1100х450 мм. | 2шт. | Выполнено из фанеры марки ФСФ толщиной 21 мм. |
| Трап-барабан в сборе с перекладиной и канатом. | 1шт. | Выполнен из бруса сечением 40х90 мм, металла окрашенного порошковой краской и полипропиленового каната. |
| Сетка | 1шт. | Выполнена из полипропиленового каната. |
| Перекладина | 16шт. | Выполнена из металла окрашенного порошковой краской. |
| Ручка вспомогательная | 6шт. | Выполнена из металла, покрытого слоем резины. |
| Мост подвесной с страховочным мостом | 1шт. | Выполнен из металла окрашенного порошковой краской, ламинированной противоскользящей вла-гостойкой фанеры толщиной 18 мм и полипропиле-нового каната. |
| Ограждение из бруса и металлических перекладин | 4шт. | Выполнено из оцинкованного металла и деревянно-го бруса сечением 40х90 мм. |
| Площадка | 3шт. | Выполнена из ламинированной противоскользящей влагостойкой фанеры толщиной 18 мм. |
| Столб | 15шт. | Выполнен из древесно-полимерного композита (ДПК) сечением 100х100 мм. |






