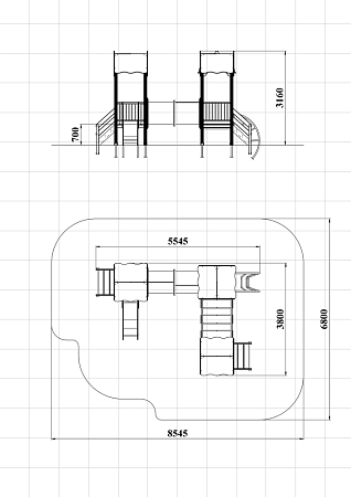
Технические параметры
Длина:
5545 мм
Ширина:
3800 мм
Высота:
3160 мм
Возраст:
от 3 до 6 лет
Высота падения:
700 мм
Площадь зоны безопасности:
58 м2
ДИК 3.08-ДПК Детский игровой комплекс Н=700 мм (Палитра 5 (-11,32))
Детский игровой комплекс состоит из трёх башен. На первой башне установлена лестница и ограждение из бруса с перекладинами. На второй башне установлена горка и ограждение из бруса с перекладинами. На третьей башне установлена горка, лестница и ограждение из бруса с перекладинами. Третья и вторая башни соединены пластиковой трубой переходом, вторая и первая соединены подвесным мостом.
Комплектация изделия
| Наименование комплектующих | шт. | Входящие материалы |
|---|---|---|
| Горка | 1шт. | Высота 700 мм. Выполнена из фанеры марки ФСФ толщиной 21 мм, металлического каркаса и ската из нержавеющей стали. |
| Крыша | 3шт. | Выполнена из фанеры марки ФСФ толщиной 18 мм и 12 мм. |
| Лестница | 2шт. | Высотой 700 мм, Выполнена из фанеры ламинированной противоскользящаей, толщиной 18 мм, бруса сечением 40х90 мм. |
| Ограждение из бруса и металлических перекладин | 3шт. | Выполнено из оцинкованного металла и деревянного бруса сечением 40х90 мм. |
| Мост подвесной с страховочным мостом | 1шт. | Выполнен из металла окрашенного порошковой краской, ламинированной противоскользящей влагостойкой фанеры толщиной 18 мм и полипропиле-нового каната. . |
| Труба переход пластиковая | 1шт. | Состоит из сегментов, изготовленных из полиэтилена низкого давления, со стенками толщиной 8 мм.. |
| Перекладина | 4шт. | Выполнена из металла окрашенного порошковой краской. |
| Лиана | 1шт. | Выполнена из металла окрашенного порошковой краской. |
| Площадка | 3шт. | Выполнена из ламинированной противоскользящей влагостойкой фанеры толщиной 18 мм. |
| Столб | 12шт. | Выполнен из древесно-полимерного композита (ДПК) сечением 100х100 мм. |






