Технические параметры
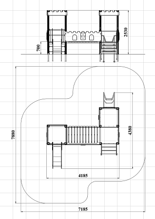
Длина:
4185 мм
Ширина:
4380 мм
Высота:
2530 мм
Возраст:
от 3 до 6 лет
Высота падения:
700 мм
Площадь зоны безопасности:
55 м2
ДИК 2.33-ДЕРЕВО Детский игровой комплекс Н=700 мм (Палитра 1 (-15))
Детский игровой комплекс состоит из двух башен с крышами. На первой башне установлена лестница, фанерные ограждения, лиана, перекладины. На второй башне установлено ограждение фанерное, горка и перекладины. Башни соединены прямым мостом с фанерными перилами.
Комплектация изделия
| Наименование комплектующих | шт. | Входящие материалы |
|---|---|---|
| Горка | 1шт. | Высота 700 мм. Выполнена из фанеры марки ФСФ толщиной 21 мм, металлического каркаса и ската из нержавеющей стали. |
| Крыша | 2шт. | Выполнена из фанеры марки ФСФ толщиной 12 мм. |
| Лестница | 1шт. | Высотой 700 мм, Выполнена из фанеры ламинированной противоскользящаей, толщиной 18 мм, бруса сечением 40х90 мм. |
| Ограждение | 3шт. | Выполнена из фанеры марки ФСФ толщиной 18 мм. |
| Ограждение моста | 2шт. | Выполнена из фанеры марки ФСФ толщиной 21 мм.. |
| Мост прямой | 1шт. | Выполнен из металла окрашенного порошковой краской и деревянного бруса сечением 40х135 мм. |
| Лиана | 1шт. | Выполнен из металла окрашенного порошковой краской. |
| Перекладина | 7шт. | Выполнен из металла окрашенного порошковой краской. |
| Площадка | 2шт. | Выполнена из ламинированной противоскользящей влагостойкой фанерф толщиной 18 мм. |
| Столб | 10шт. | Выполнен из клееного деревянного бруса, сечением 100х100 мм. |






