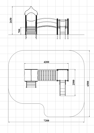
Технические параметры
Длина:
4200 мм
Ширина:
2500 мм
Высота:
2650 мм
Возраст:
от 3 до 6 лет
Высота падения:
700 мм
Площадь зоны безопасности:
47 м2
ДИК 2.091-ДЕРЕВО Детский игровой комплекс Н=700 мм (Палитра 1 (-15))
Детский игровой комплекс состоит из двух башен соединенных радиусным мостом с металлическими перилами. На первой башне установлена крыша,фанерное ограждение, ограждение из бруса с перекладинами и лестница. На второй башне установлена горка, фанерное ограждение и ограждение из бруса с перекладинами.
Комплектация изделия
| Наименование комплектующих | шт. | Входящие материалы |
|---|---|---|
| Горка | 1шт. | Высота 700 мм. Выполнена из фанеры марки ФСФ толщиной 21 мм, металлического каркаса и ската из нержавеющей стали. |
| Крыша | 1шт. | Выполнена из фанеры марки ФСФ толщиной 18 мм и 12 мм. |
| Лестница | 1шт. | Высотой 700 мм, Выполнена из фанеры ламинированной противоскользящаей, толщиной 18 мм, бруса сечением 40х90 мм. |
| Ограждение 1100х600 | 2шт. | Выполнена из фанеры марки ФСФ толщиной 18 мм. |
| Ограждение из бруса и металлических перекладин | 2шт. | Выполнен из оцинкованного металла и деревянного бруса сечением 40х90 мм. |
| Ограждение моста | 4шт. | Выполнен из металла окрашенного порошковой краской. |
| Мост радиусный | 1шт. | Выполнен из металла окрашенного порошковой краской и деревянного бруса сечением 40х135 мм. |
| Площадка | 2шт. | Выполнена из ламинированной противоскользящей влагостойкой фанерф толщиной 18 мм. |
| Столб | 8шт. | Выполнен из клееного деревянного бруса, сечением 100х100 мм. |






