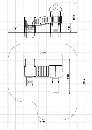
Технические параметры
Длина:
3380 мм
Ширина:
3730 мм
Высота:
2880 мм
Возраст:
от 3 до 6 лет
Высота падения:
900 мм
Площадь зоны безопасности:
46 м2
ДИК 2.083-ДЕРЕВО Детский игровой комплекс Н=900 мм (Палитра 1 (-15))
Детский игровой комплекс состоит из двух башен соединенных разновысоким мостом с перилами из фанеры. На первой башне установлена крыша, два фанерных ограждения и горка. На второй башне установлена лестница,ограждение фанерное и лиана наклонная с перекладиной.
Комплектация изделия
| Наименование комплектующих | шт. | Входящие материалы |
|---|---|---|
| Горка | 1шт. | Высота 900 мм. Выполнена из фанеры марки ФСФ толщиной 21 мм, металлического каркаса и ската из нержавеющей стали. |
| Крыша | 1шт. | Выполнена из фанеры марки ФСФ толщиной 18 мм и 12 мм. |
| Лестница | 1шт. | Высотой 700 мм, Выполнена из фанеры ламинированной противоскользящаей, толщиной 18 мм, бруса сечением 40х90 мм. |
| Ограждение | 3шт. | Выполнена из фанеры марки ФСФ толщиной 21 мм. |
| Ограждение моста | 2шт. | Выполнено из фанеры марки ФСФ толщиной 21 мм. |
| Мост наклонный | 1шт. | Выполнен из металла окрашенного порошковой краской и деревянного бруса сечением 40х135 мм. |
| Лиана наклонная | 1шт. | Выполнена из металла окрашенного порошковой краской. |
| Перекладина | 1шт. | Выполнена из металла окрашенного порошковой краской. |
| Площадка | 2шт. | Выполнена из ламинированной противоскользящей влагостойкой фанерф толщиной 18 мм. |
| Столб | 8шт. | Выполнен из клееного деревянного бруса, сечением 100х100 мм. |






