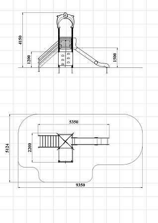
Технические параметры
Длина:
5350 мм
Ширина:
2200 мм
Высота:
4150 мм
Возраст:
от 7 до 13 лет
Высота падения:
1500 мм
Площадь зоны безопасности:
47 м2
ДИК 1.29-ДЕРЕВО Детский игровой комплекс Н=1500 (Палитра 1 (-15))
Детский игровой комплекс состоит из двух разновысоких башен. На одной из башен установлены крыша в форме дельфинов, лестница, горка, металлическое ограждение, на другой башне установлены альпинистская стенка, перекладина с канатом, металлическое ограждение, ручки и шведская стенка.
Комплектация изделия
| Наименование комплектующих | шт. | Входящие материалы |
|---|---|---|
| Горка | 1шт. | Высота 1500 мм. Выполнена из фанеры марки ФСФ толщиной 21 мм, металлического каркаса и ската из нержавеющей стали. |
| Крыша | 1шт. | Выполнена из фанеры марки ФСФ толщиной 18 мм. |
| Лестница | 1шт. | Высотой 1500 мм, Выполнена из фанеры ламинированной противоскользящаей, толщиной 18 мм, бруса сечением 40х90 мм. |
| Альпинистская стенка | 1шт. | Выполнена из фанеры марки ФСФ толщиной 18 мм. |
| Перекладина с канатом | 1шт. | Выполнена из металла окрашенного порошковой краской и полипропиленового каната. |
| Перекладина | 7шт. | Выполнена из металла окрашенного порошковой краской. |
| Ограждение металлическое | 2шт. | Выполнено из металла окрашенного порошковой краской. |
| Ручка вспомогательная | 2шт. | Выполнена из металла, покрытого слоем резины. |
| Площадка | 2шт. | Выполнена из ламинированной противоскользящей влагостойкой фанерф толщиной 18 мм. |
| Столб | 6шт. | Выполнен из клееного деревянного бруса, сечением 100х100 мм. |






